- Номер на обявата: Kuk22
- Депозит: 4,000€
- 94,500€
Основна информация
Особености
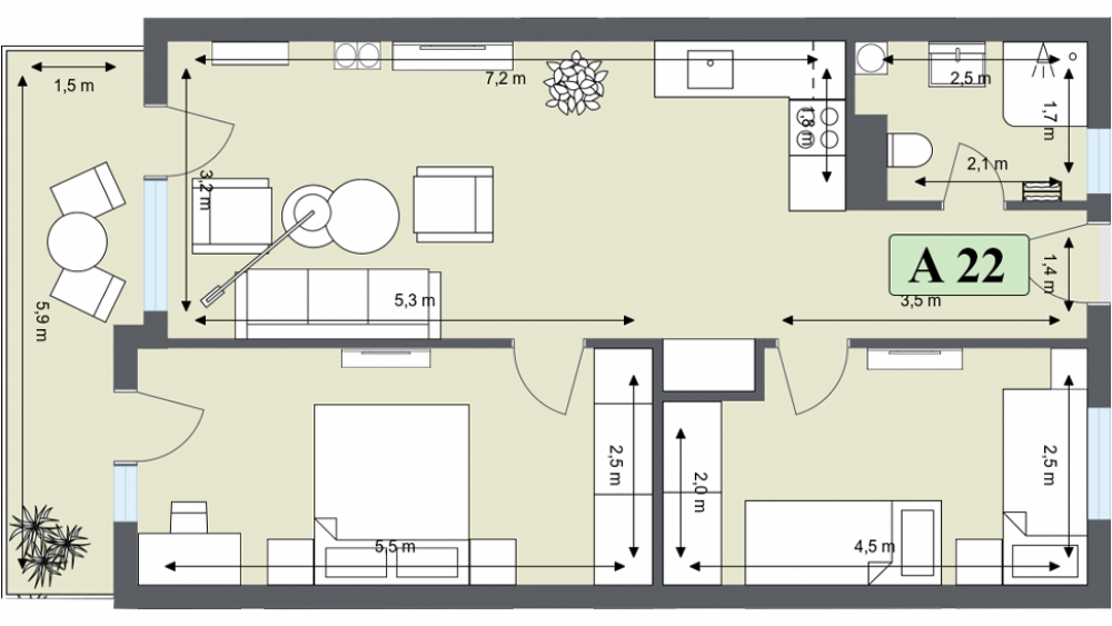
Апартаментът разполага с функционално и удобно разпределение, което осигурява комфорт както за постоянно живеене, така и за почивка.
В жилището са предвидени:
Просторна всекидневна с кухненски бокс — около 7,2 м дължина, което позволява обособяване на пълноценна кухня, трапезарна зона и зона за отдих с диван. Пространството е отворено и светло, с излаз към голяма тераса.
Терасата е с приблизителни размери 6,9 × 1,5 м, което позволява поставянето на маса, столове или малка лаунж зона за отдих на открито.
Две отделни спални:
• първата спалня — приблизително 5,5 м дължина, подходяща за голямо легло и гардероб;
• втората спалня — около 4,5 м, удобна като детска стая или стая за гости.
Входно антре (коридор) осигурява удобен достъп до всички помещения в апартамента.
Баня с тоалетна е разположена в близост до входа и има компактно и функционално разпределение.
Апартаментът има логично зониране:
дневната зона (всекидневна с кухня и тераса) е отделена от приватната част с двете спални, което създава комфортно пространство за живот на цялото семейство.
....
Комплекс от луксозни апартаменти в близост до историческия център на Банско, с неговите забележителности, традиционни ресторанти и механи, и на минути от новия кабинков лифт за ски пистите. Битовия дизайн и архитектура на сградата са в тясна хармония с околностите.
Комплекс е в уникален алпийски стил, с динамична форма, включваща две сгради, свързани чрез централна кула. Върхът на кулата е реплика на камбанарията от църквата в Банско. Типичния местен стил е отразен с във формата на балконите, стрехите, комините, покритите с камък стени и калдъръмените пътечки. Сградата съчетава естествени материали като дърво камък, ковано желязо, елегантно комбинирани с модерна хидро-, топло- и звукоизолации.
Този уникален комплекс е приятна спирка както в снежните дни на зимата, така и през прохладните и свежи летни месеци – осигуряващ почивка и спокойствие на всеки решил да се наслади на свежестта на Пирин планина.
Задължително мазе 3 кв.м. — 1 750 €
....
Инвестиционна стойност
Гарантиран доход от наем през първата година — 7% от стойността на имота.
Възможност не само да притежавате, но и да увеличавате.
⸻
Оглед
Свържете се с нас и ще организираме оглед в удобно за вас време.
Понякога е достатъчно просто да прекрачите прага, за да разберете — това е вашето място.
⸻
Резервация
Имотът може да бъде резервиран след заплащане на депозит.
Осигуряваме пълно юридическо съдействие по сделката — спокойно, прозрачно и професионално.
⸻
След покупката
Оставаме до вас и след финализиране на сделката.
Съдействаме при управление и отдаване под наем в района на Банско,
за да може вашият имот да работи за вас, докато вие се наслаждавате на живота.
Комисионна за купувача — 3%. (без ДДС)














