Гостевой дом в Банско
Bansko
7
5

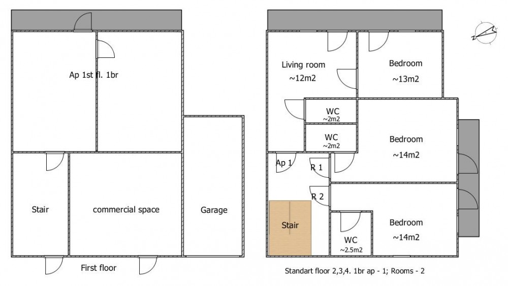
Агентство недвижимости "Hello Bulgaria" рада представить вам гостевой дом, расположенный в центральной части Банско. Дом состоит из 4 этажей с общей застроенной площадью от 600 кв.м. и 100 кв.м. двор. Он расположен в районе с хорошей инфраструктурой и коммуникациями.
Первый этаж жилой, а остальные 3 этажа имеют 6 гостиничных номеров и 3 однокомнатных квартиры. Во всех номерах есть отдельная ванная комната. Система отопления на твердом топливе. В летнее время работает солнечная система с 2 водонагревателями емкостью 800 литров. В доме есть 2 складских помещения, гараж, барбекю и коммерческое помещение с площадью от 25 кв.м.